Costa Rodona edifici de serveis amb fusta prefabicat al Pas de la Casa, Encamp per Altura Arquitectes

Costa Rodona | Arquitectura en fusta a 2.200 m

Un edifici de serveis a Grandvalira construït en només 9 mesos amb CLT, pòrtics de fusta i solucions sostenibles per a alta muntanya.

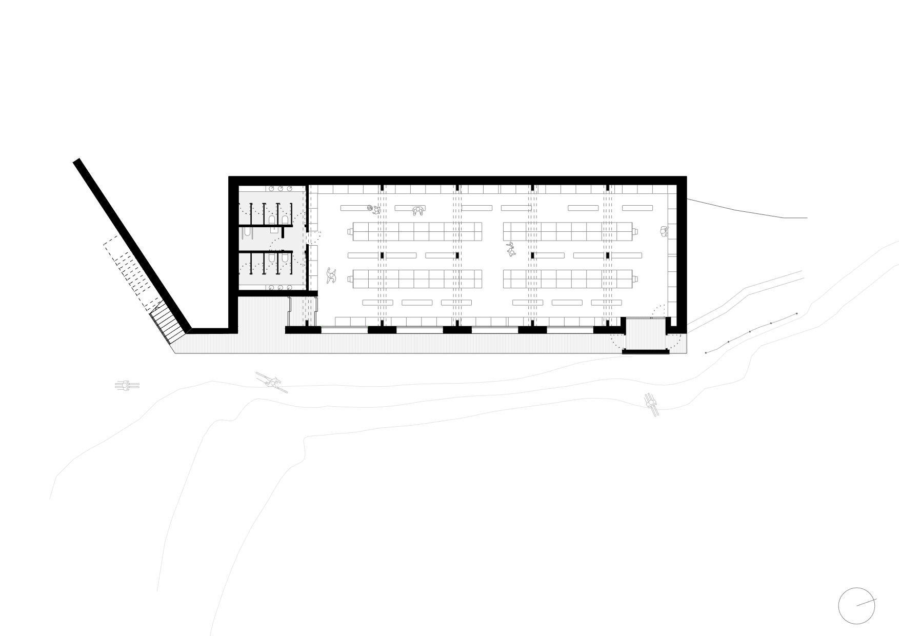
Construir a 2.200 metres d’altura al Pas de la Casa (Grandvalira) suposa un repte arquitectònic i tècnic. El projecte de Costa Rodona es va desenvolupar en només 9 mesos, des del tancament de la temporada d’esquí fins a l’obertura següent. L’elecció de la fusta com a sistema constructiu va ser clau per assolir el termini i garantir sostenibilitat, eficiència i rapidesa. L’edifici resol el programa amb una estructura de pòrtics i panells CLT-Mix, façanes d’entramat lleuger i fusta vista als interiors. El resultat és un edifici funcional, sostenible i integrat que ordena l’accés a pistes i concentra tots els serveis per als esquiadors i clubs.

 

  • Localització: Pas de la Casa, Encamp, Andorra
  • Realització: 2023
  • Programa: Equipament
  • Client: SAETDE
  • Superfície: 744 m2
  • Estat: Finalitzat
  • Equip: Estructura: BEAL AEC Enginyers, Estructura de fusta: EGOIN, Instal·lacions: JJT Enginyeria, Assessor ambiental: Arqbag, Fotografia: Art de viure, Video: Vista Visuals

Construir a 2.200 metres d’altura al Pas de la Casa, a Grandvalira, és un repte arquitectònic marcat per la meteorologia extrema i els terminis exigents. El projecte de Costa Rodona va resoldre aquestes dificultats amb una estratègia clara: l’ús de la fusta com a sistema constructiu principal, permetent reduir temps d’execució, impacte ambiental i cost econòmic.

Des de l’inici, l’edifici es va concebre amb una modulació adaptada a la fusta. La solució estructural es va organitzar en cinc grans pòrtics que permeten espais diàfans i flexibles, capaços d’adaptar-se a futurs requeriments. La coberta CLT-Mix, formada per panells contra-laminats amb aïllament integrat, es va dissenyar amb un pendent excepcional del 90% per evitar l’acumulació de neu i així reduir les càrregues estructurals en un terç. Les façanes es van executar amb entramat lleuger de fusta, i les instal·lacions es van deixar vistes per simplificar acabats i posar en valor la calidesa del material.

El programa respon a la necessitat de endreçar i equipar l’accés de Costa Rodona. Allà on hi havia talussos i barracons, avui hi ha un edifici de serveis que s’integra al pendent i ofereix dos accessos a nivell: des de l’aparcament i directament a pistes. L’edifici inclou punt de venda de forfaits, oficines, botiga, guarda-esquís, taquilles guardaesquís per a clients i espais renovats per als clubs d’esquí.

El resultat és un equipament d’alta muntanya funcional, sostenible i contemporani, que ordena l’accés a Grandvalira i demostra el potencial de la fusta com a solució arquitectònica en entorns extrems.

ESTRATÈGIES AMBIENTALS I BIOCLIMÀTIQUES

S’han realitzat diverses estratègies ambientals per tal de minimitzar l’impacte de l’edifici: 

  •  Envolupant de l’edifici (fonaments, murs de contenció, façana i coberta) molt aïllats per tal de reduir el consum energètic durant l’ús de l’edifici.
  • Utilitzar fusta de proximitat en la mesura del possible. Gran part de la fusta utilitzada prové dels Pirineus i les finestres, també de fusta han estat fabricades a Lleida. Així es redueix l’impacte del transport dels materials. 
  •  Utilització de materials amb una baixa energia incorporada. L’energia necessària per produir l’estructura de fusta és molt inferior a l’emprada en estructures de formigó, acer i ceràmica. A més a més, l’arbre en el seu creixement absorbeix CO2 de l’atmosfera. Les façanes s’han realitzat amb pedra (mínim requerit per normativa) i fusta de pi làrix sense tractar assumint que el seu aspecte variarà amb el temps.  
  • Pel que fa als sistemes actius per produir l’energia necessària per la demanda energètica d’aigua caleta sanitària i calefacció s’ha realitzat amb pous de geotèrmia. Donada l’ubicació en alçada i la baixa temperatura de l’aire exterior, l’aerotèrmia hagués tingut un rendiment molt baix així que s’ha optat per aprofitar l’inèrcia del terreny amb una temperatura molt estable al llarg de l’any.
  • S’ha incorporat una ventilació mecànica amb recuperador de calor per tal de garantir una bona qualitat de l’aire i alhora evitar l’entrada de l’aire fred exterior.
  • Estructura diàfana que permet l’adaptabilitat de l’edifici a usos futurs.

 

PREMIS I PUBLICACIONS 

Altres projectes

Altres projectes

Tots >