Rehabilitació i remunta d'un edifici d'habitatge plurifamiliar a Andorra la Vella per Altura Arquitectes

Edifici plurifamiliar al Riu, Andorra la Vella | Rehabilitació i remunta conscient

Reforma integral d’un edifici d’habitatges que es reconnecta amb el riu, amb nous pisos passants, estructura de fusta i millora energètica sostenible.

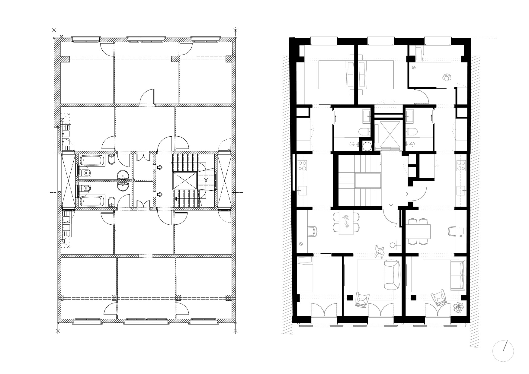
La rehabilitació del bloc d’habitatges perseguia millorar les condicions d’habitabilitat d’un edifici que, com tots els del carrer, històricament havien donat l’esquena al riu. 
El projecte de reforma gira com un mitjó l’edifici per tal d’eliminar les diferències qualitatives que hi havia entre els pisos originals de manera que les totes les noves unitats puguin gaudir de les mateixes condicions respecte l’entorn. Així, tots els nous pisos s’han fet passants per garantir la ventilació creuada, tots gaudeixen de la bona orientació a sud i tots s’han obert cap les vistes i la relació amb el riu que abans no miraven. 

  • Localització: Andorra la Vella, Andorra
  • Realització: 2023
  • Programa: Habitatge
  • Client: Privat
  • Superfície: 1.272,85 m2
  • Estat: Finalitzat
  • Equip: Estructures: BEAL AEC, Instal·lacions: ATECI, Enginyeria Ambiental: Arqbag, Fotografia: ADV

Com a primer punt a destacar hi ha el fet que aquest edifici s’hagi pogut REHABILITAR en comptes de la molt sovint solució fàcil de l’enderroc i la nova construcció. Creiem que, sempre que sigui possible, actualment s’ha de prioritzar la reforma i rehabilitació en front la tabula rasa. L’impacte mediambiental d’una rehabilitació és molt menor que el d’una obra nova.

Un segon punt a destacar del projecte és el fet de que abans hi havien el 50% de pisos que tenien sol i vistes cap a riu  i la resta tenien únicament vistes cap al carrer Doctor Mitjavila amb orientació nord, és a dir que no tenien cap hora de sol al llarg del dia. Actualment tots els habitatges de la promoció són passants i donen a l’avinguda Dr. Mitjavila i al passeig del Riu. Aconseguim així que tots disposin de sol, vistes i a més de ventilació creuada.  
Hem fet una sèrie de simulacions dinàmiques que han valorat les renovacions d’aire que es poden aconseguir en els habitatges en funció dels vents dominats que tenim en aquesta zona en concret. D’aquesta manera tots els pisos estan millor preparats en front als episodis cada vegada més freqüents de onades de calor.

La promoció està ubicada al centre d’Andorra La Vella i ha volgut conservar l’estil senzill i auster de l’edifici anterior i de la resta d’habitatges del barri. El confort està en l’interior, en la utilització de espais passants, portes corredisses que llisquen en els murs de càrrega estructurals. Les noves solucions estructurals, tant en les llindes dels passos de porta com en els forjats de la remunta s’ha utilitzat la fusta. 

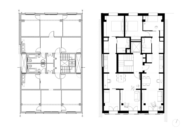
Aprofitant la reforma, s’ha refet l’escala i s’ha instal·lat un ascensor. Aquest nucli de comunicació té 2 grans  lluernaris que milloren la seva qualitat, i s’han volgut remarcar amb l’ús d’un color càlid grogós-ataronjat com la barana interior.

A nivell tèrmic s’han refet totes les façanes utilitzant una paret de tancament de termoargila i un sistema SATE amb aïllaments no químics, per tant permeable a la difusió del vapor d’aigua provinent de l’interior, i en planta baixa s’ha revestit aquest SATE amb peces ceràmiques vitrificades.


Sobre els murs existents s’ha afegit una nova planta amb una arquitectura lleugera amb forjats de fusta amb dos nous àtics dúplex. 
Per aquesta remunta s’ha utilitzat totxo vist que s’ha pintat de blanc per les parets de càrrega i forjats de tauler de fusta de gran format amb aïllament que redueix el pes i dóna molt bona prestació tèrmica. El fet de no sobrecarregar l’edifici ens ha permès NO reforçar els fonament existents. 


Els pisos passants han volgut prioritzar aquesta idea de creuar els espais de sala a sala travessant els murs de càrrega, generant una sensació nova i poc vista en els habitatges a Andorra.

Ja que tots els habitatges tenien les sales d’estar orientades a sud i a riu, s’ha volgut utilitzar un sistema de protecció solar que permetés matisar la llum, generant diferents graus en funció de com es disposin els llibrets mòbils dels porticons. Tant sols els dormitoris disposen de persianes de tambor que fan fosc per dormir. 
El local comercial s’ha bolcat cap al passeig del riu apropant-lo a un espai natural al qual se li havia donat l’esquena en l’edifici original.  

ESTRATÈGIES BIOCLIMÀTIQUES

  • Simulació energètica per calcular i optimitzar al funcionament climàtic de l’edifici
  • Millora de l’envolupant tèrmica incrementant l’aïllament
  • Reducció de ponts tèrmics donant continuïtat a l’aïllament per l’exterior de l’estructura
  • Proteccions solars per evitar el sobreescalfament a l’estiu 
  • Ventilació creuada natural a totes les estances per millorar la qualitat de l’aire i afavorir la refrigeració a l’estiu
  • Utilització de sistemes actius d’alta eficiència per la producció de calor com l’aerotèrmia
     

ESTRATÈGIES EN L’ÚS DE RECURSOS

  • Minimització dels enderrocs i fomentar la rehabilitació
  • Ús de materials amb baixa energia incorporada com la fusta
  • Reutilització de materials per evitar generar nous impactes 
  • Estructura de fusta com a embornal de CO2 (remunta amb estructura de fusta)
  • Suficiència de materials utilitzant el mínim de recursos necessaris deixant l’estructura vista com a acabat o evitant l’ús extensiu de falsos sostres
  • Llibertat de distribucions amb espais no jerarquitzats 

 

PREMIS I PUBLICACIONS

Altres projectes

Altres projectes

Tots >