Borda a la Vall d'Incles dissenyat per Altura Arquitectes - Passiv House

Borda a la vall d’Incles | Passivhaus i estructura de fusta

Arquitectura sostenible de muntanya amb consum quasi nul i integració al paisatge

Ubicada en un entorn privilegiat de la vall d’Incles, aquesta borda certificada Passivhaus és una reinterpretació contemporània de l’arquitectura de muntanya. L’edifici combina l’estètica tradicional amb sistemes constructius de fusta dels Pirineus, aconseguint confort, sostenibilitat i un consum energètic quasi nul. La casa s’insereix en el terreny, adaptant-se al pendent i obrint-se a les vistes de la vall. Els grans finestrals, l’aïllament òptim i l’ús de fusta prefabricada garanteixen rapidesa d’execució, eficiència energètica i una gran calidesa interior, posant en valor la construcció sostenible en alta muntanya.

  • Localització: Vall d'Incles, Canillo, Andorra
  • Realització: 2022
  • Programa:
  • Client: Privat
  • Superfície: 160 m2
  • Estat:
  • Equip: Interiorisme: Laura Torres, Estructures: Beal AEC, Instal·lacions: R3e, Assessor Ambiental: Praxis Resilient Buildings, Fotografia: Pol Viladoms

La borda de la vall d’Incles és un projecte d’habitatge sostenible que combina la reinterpretació de l’arquitectura tradicional de muntanya amb tecnologies constructives contemporànies. Certificada amb el segell Passivhaus, l’edificació garanteix un consum energètic gairebé nul i un alt nivell de confort durant tot l’any.

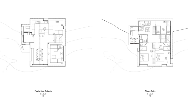
La distribució s’organitza en dues plantes. A la planta principal destaca un espai longitudinal amb una biga de carener de fusta massissa d’onze metres feta d’un sol tronc, que articula la cuina, el menjador i un finestral amb vistes espectaculars a la vall. Annex a aquest espai es troba la sala d’estar, situada en un petit desnivell que la fa més recollida i que reflecteix l’adaptació de la casa al pendent natural del terreny. A la planta semisoterrada es disposen les habitacions, incloent-hi una amb doble alçada i llum zenital, resolta amb lliteres esglaonades que connecten amb la planta superior.

Tots els espais respiren calidesa gràcies a la fusta reutilitzada i a la il·luminació indirecta, que combina amb detalls d’acer i acabats negres per reforçar el contrast material.

La casa ha estat dissenyada seguint una estratègia passiva: grans obertures orientades per maximitzar els guanys solars, un excel·lent nivell d’aïllament i ventilació controlada. L’estructura de murs, forjats i cobertes s’ha resolt amb fusta prefabricada dels Pirineus, reduint el temps d’execució i minimitzant l’impacte ambiental —un factor clau en una obra a gairebé 1.800 metres d’altura.

El resultat és una borda que combina disseny, sostenibilitat i innovació, aportant un exemple d’arquitectura Passivhaus en entorn de muntanya.

ESTRATÈGIES BIOCLIMÀTIQUES

  • Simulació energètica per calcular i optimitzar al funcionament climàtic de l’edifici
  • Millora de l’envolupant tèrmica incrementant l’aïllament
  • Reducció de ponts tèrmics donant continuïtat a l’aïllament per l’exterior de l’estructura
  • Optimització de les obertures per maximitzar la captació solar amb obertures a sud i reducció d’obertures a nord
  • Sistema de ventilació mecànica controlada amb recuperació de calor per evitar pèrdues energètiques en la ventilació


ESTRATÈGIES EN L’ÚS DE RECURSOS

  • Ús de materials amb baixa energia incorporada com la fusta tant en l’estructura com el tancament de façana amb panells d’entramat lleuger i la pedra poc transformada com a revestiment exterior.
  • Limitar l’ús de materials d’alt impacte a on són insubstituïbles: XPS només en fonamentacions i formigó quan l’edificació està en contacte amb el terreny
  • Ús de materials de fàcil reciclabilitat
  • Estructura de fusta com a embornal de CO2
  • Suficiència de materials utilitzant el mínim de recursos necessaris: estructura vista com a acabat i no utilitzar falsos sostres 
  • Tractament dels espais verds restituint les zones afectades durant l’obra amb herba de prat i gleva conservada
  • Promoció de l’economia circular i el talent local amb la utilització de fusta del Pirineu afavorint el treball col·laboratiu de proximitat
  • Recuperació i foment de les tècniques constructives tradicionals ús de moters de calç i parets de pedra seca per restituir les tanques de la parcel·la

 

PREMIS I PUBLICACIONS 

Altres projectes

Altres projectes

Tots >